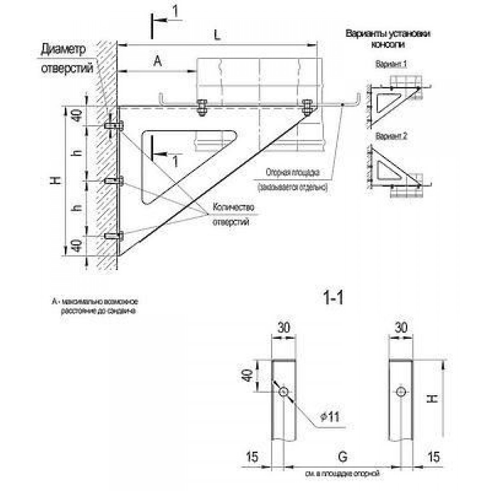
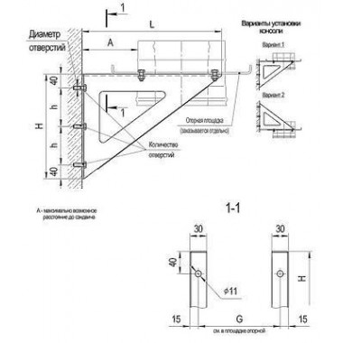
Консоль
| Консоль (fk01) | |||||||||||
|---|---|---|---|---|---|---|---|---|---|---|---|
| Номер | L | H | h | Кол-во отверстий | Диаметр отверстий | Масса | Несущая способность, кг | ||||
| К1 | 280 | 200 | 120 | 2 | 11 | 1.28 | 150 | ||||
| К2 | 330 | 250 | 170 | 2 | 11 | 1.61 | 150 | ||||
| К3 | 400 | 300 | 220 | 2 | 11 | 2.23 | 150 | ||||
| К4 | 500 | 370 | 289 | 2 | 11 | 2.87 | 200 | ||||
| К5 | 600 | 440 | 180 | 3 | 11 | 3.52 | 200 | ||||
| К6 | 700 | 510 | 215 | 3 | 11 | 4.64 | 200 | ||||
| К7 | 950 | 680 | 300 | 3 | 11 | 8.07 | 200 | ||||
| К8 | 1300 | 980 | 450 | 3 | 11 | 14.01 | 200 | ||||
Характеристики
- Марка стали дымохода
- AISI 430
- Материал дымохода
- Нержавеющая сталь
- Область применения дымохода
- Печи, Камины, Котлы
- Производитель
- Ferrum
- Состояние
- Новое
- Страна производитель
- Россия
- Толщина материала
- 2 мм
Нет отзывов о данном товаре.
Оставить отзыв